合同会社 アトリエAXIS
合同会社アトリエAXISは建築専門とする設計事務所です。
TEL.
098-861-3553
〒900-0033 沖縄県那覇市久米1丁目1番8号
メニュー
コンテンツへスキップ
HOME
CONCEPT
WORKS
PROJECT
GALLERY
ABOUT
COMPANY
CONTACT
ACCESS
BLOG
トップ
›
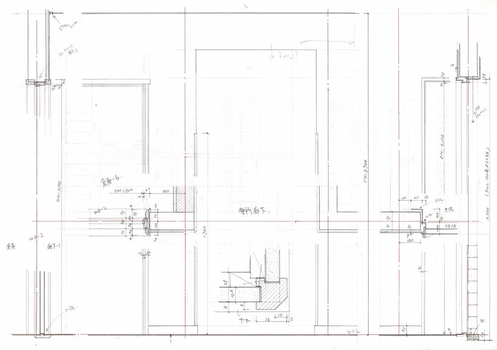
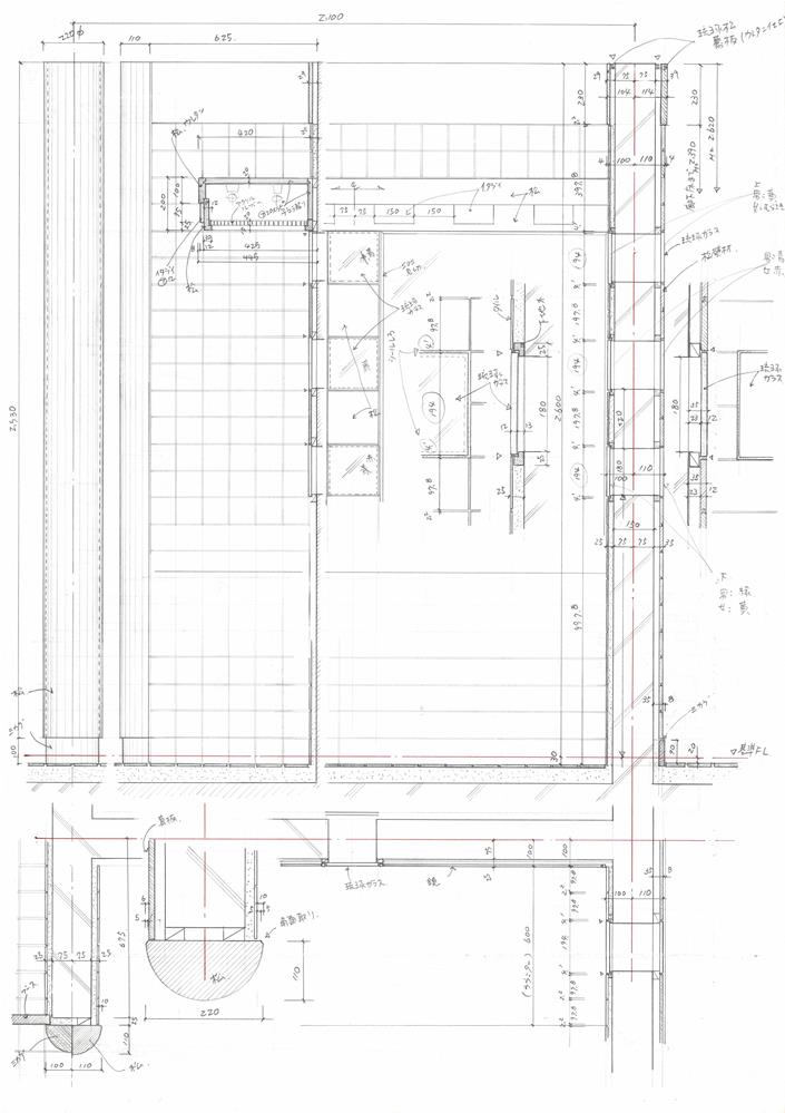
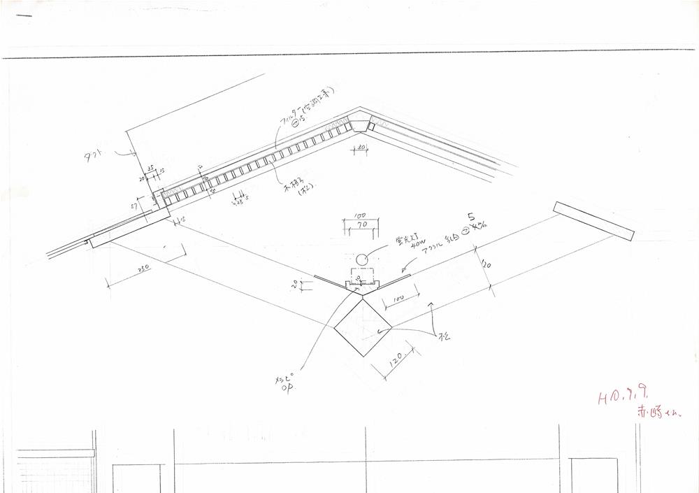
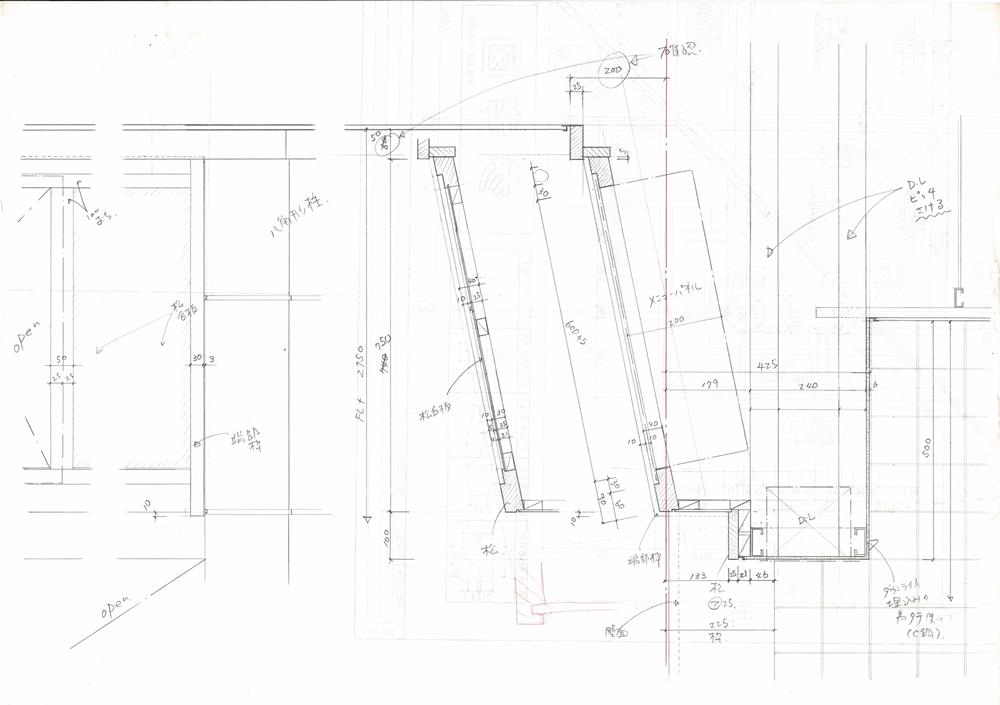
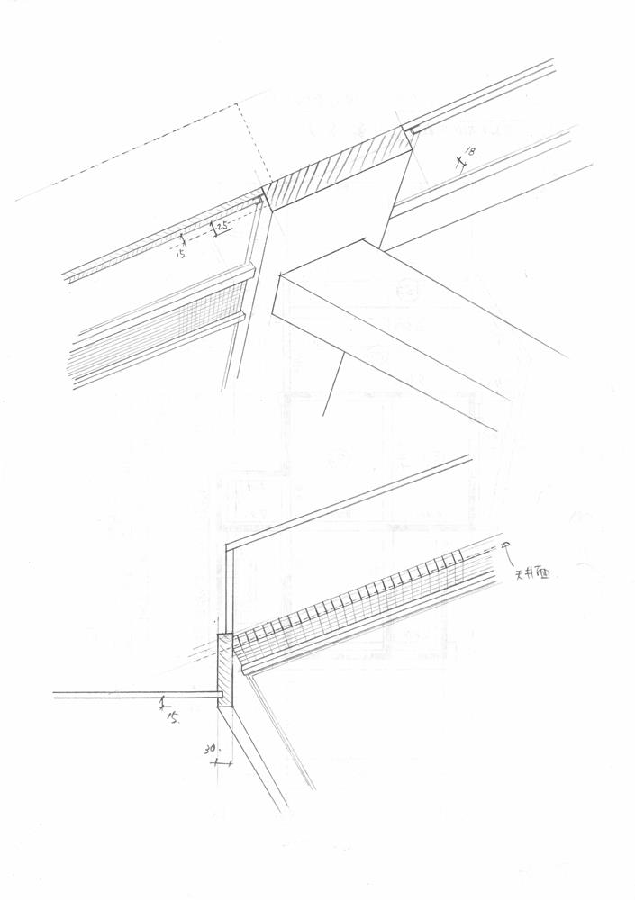
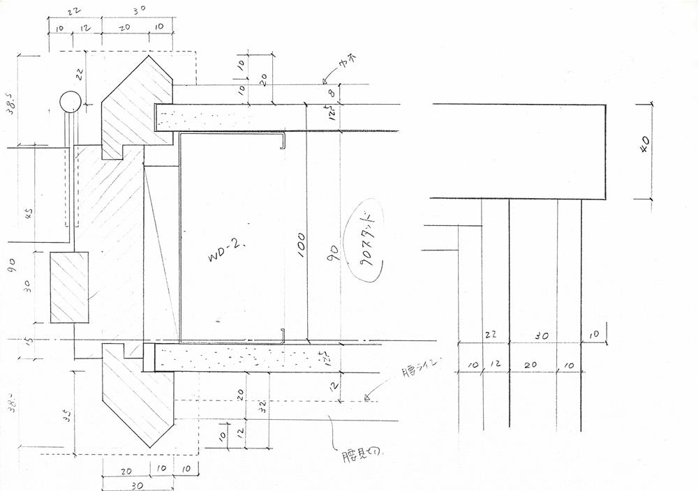
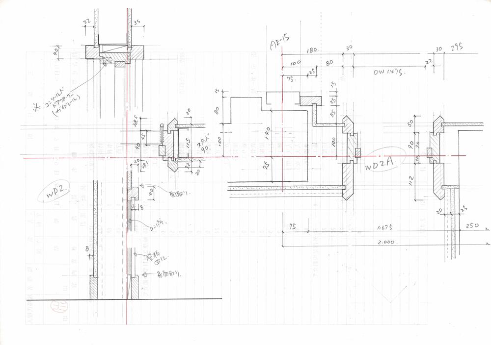
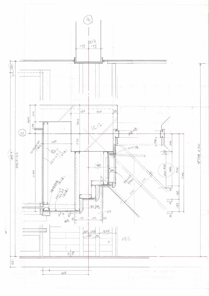
sketch
sketch
※画像をクリック